ホーム > S-キューブ鷹子

S-キューブ鷹子 所在地:愛媛県松山市鷹子903番地1

空室状況はこちら

 

初期費用

■通常初期費用
保証金 賃料の約1ヶ月分+消費税
事務手数料 11,000円
鍵代 1,500円

初期費用の計算はこちら

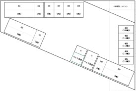
配置図

配置図

WEB申込はこちら

料金表

収納容量のイメージはこちら

帖数 賃料(税込) 幅×奥行×高さ(m)
1.6帖 6,270円 1.15×2.3×2.3
2.0帖 8,360円 1.45×2.3×2.3
6.0帖 25,080円 4.35×2.3×2.3
バイク2.1帖 8,657円 1.45×2.5×2.3
管理費 月額1,100円

空室状況はこちら

所在地

愛媛県松山市鷹子903番地1

愛媛県松山市鷹子903番地1

Googleストリートビューにて周辺を確認できます

  • ロットバータイプのドアの開け方
  • ロットバータイプのドアの閉め方

ページトップへ